Mobirise

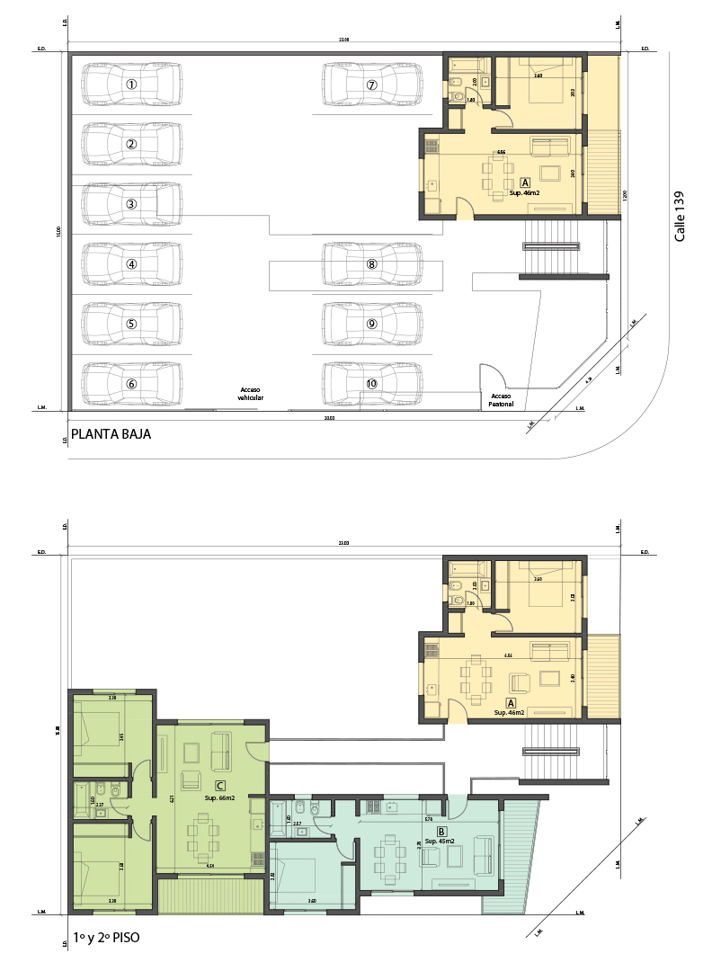
Planos

Caracteristicas de
los Departamentos:

· Pisos de porcelanato en estar - comedor y cocina.
· Pisos flotantes de primera calidad en dormitorios.
· Revestimientos cerámicos en baños.
· Sanitarios Ferrum, Roca o similar.
· Griferia con cierre cerámico FV, Hidromet o similar.
· Calefacción por tiro balanceado con artefactos incluídos.
· Preinstalación para aire acondicionado split.
· Carpintería exterior de aluminio anodizado DVH.
· Aberturas interiores enchapadas en cedro.
· Mesada de granito.
· Mobiliarios de cocinas de diseño en melamina color.
· Termotanque.
· Cocina.
· Campana.
· Cielorrasos suspendidos con placas de yeso.
· Revestimiento plástico exterior.
· Frentes de Placard en melamina color.

Contacto

Déjenos su consulta o coordine una visita

Contacto

yamilenadeff@hotmail.com
11 5813 0376

AI Website Generator